UPOZORNĚNÍ:
Pro odeslání formuláře musíte mít povolen JavaScript. Pokud váš prohlížeč JavaScript nepodporuje můžete
deaktivovat ochranu formulářů
.
Byty
Ceník
Lokalita
Fotogalerie
Kontakt
Toggle navigation
UPOZORNĚNÍ:
Pro odeslání formuláře musíte mít povolen JavaScript. Pokud váš prohlížeč JavaScript nepodporuje můžete
deaktivovat ochranu formulářů
.
Zadejte text
Byty
Ceník
Lokalita
Fotogalerie
Kontakt
Home
>
Byty
> Byt č. 3.01
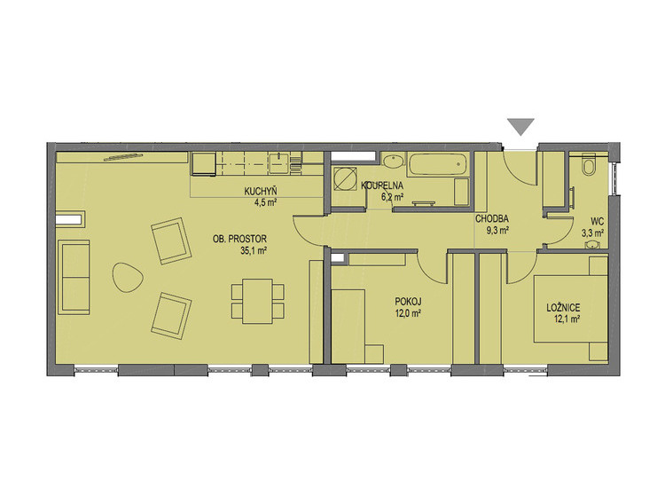
Byt č. 3.01
Dispozice
3+kk
Užitná plocha
82,50 m²
Celková plocha
82,50 m²
Katalogový list
[460 kB]
Pronajato
Kontaktujte
nás
Lyžařská 123
Špindlerův Mlýn
543 51
+420 775 883 555
prodej@oazalanov.cz
© 2019
WebActive s.r.o.
Home
Mapa serveru
Top